OUR
COMMUNITIES
OUR
COMMUNITIES
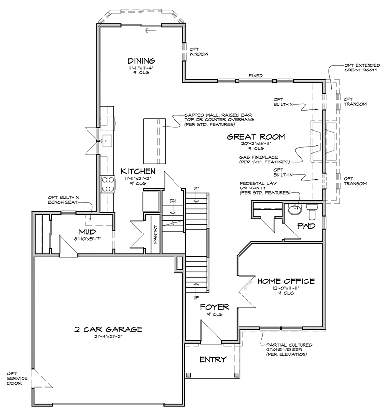
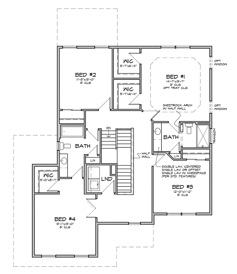
This two story home offers 4 bedrooms and 2.5 bathrooms, open foyer, expansive great room, home office, large kitchen with snack bar and spacious dining area. The spacious foyer features a dramatic split staircase and leads to an expansive great room open to the kitchen and dining. 9 ft first floor ceilings, full basement and 2 car garage are also added benefits.
Note: Photo/Rendering is for illustrative purposes only and may reflect options not included in the standard features and/or purchase price
Email A Friend



