Call Us Today - 518-899-6311
Michaels Group Homes logo

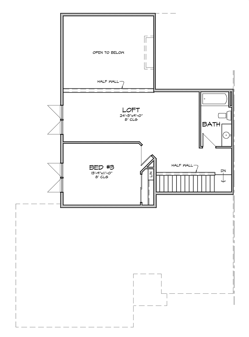
The Redfield


The Redfield

Specifications

Twin Homes
3 Bedrooms
3 Bathrooms
2-Car Garage
1,904 Square Feet
Priced from: $ 535,900

Request More Information

Model Links

eBrochure Email A Friend

Communities That Showcase The Redfield

Floor Plans


First Floor

Second Floor

Michaels Group Homes

Contact Us

Michaels Group Homes
1 Marions Way
Mechanicville, NY 12118
518-899-6311

Social

Share


 
 
New York Energy Star Homes
Certified Green Professional
 
 
Location, home designs, features and prices are subject to change without notice. We are pledged to the letter and spirit of the U.S. policy for the achievment of equal housing opportunity throughout the Nation. We encourage and support an affirmative marketing program in which there are no barriers to obtaining housing because of race, color, religion, sex, handicap, familial status or national origin.
© Copyright 2026, Michaels Group Homes. All Rights Reserved.
Home Builder Website Design by Blue Tangerine
Top