OUR
COMMUNITIES
OUR
COMMUNITIES
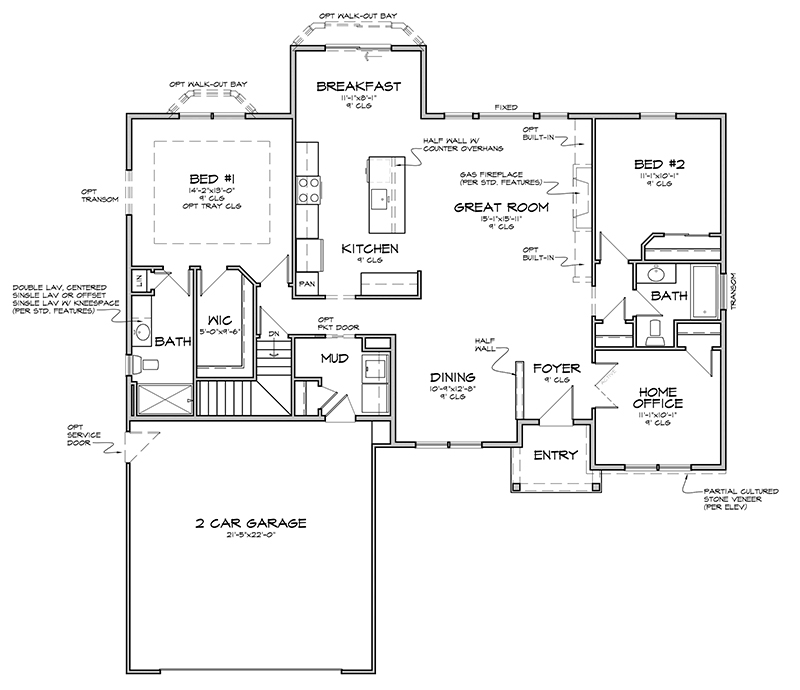
This one story home offers 2-3 bedrooms, 2 bathrooms, a lavish entry foyer open to a great room, dining room, large kitchen with breakfast nook, home office, 9ft first floor ceilings, full basement, 2 car garage.
Note: Photo/Rendering is for illustrative purposes only and may reflect options not included in the standard features and/or purchase price
Email A Friend




