OUR
COMMUNITIES
OUR
COMMUNITIES
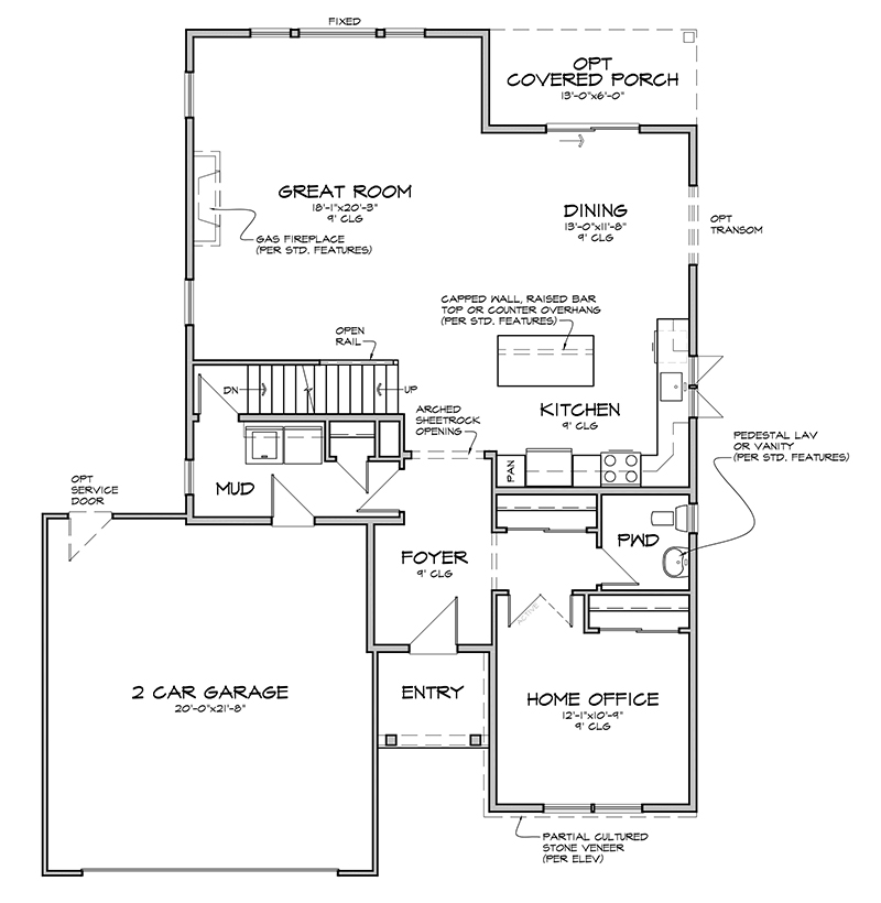
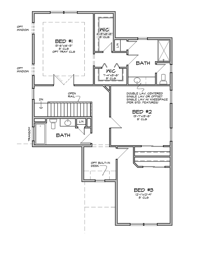
This two story home offers 4 bedrooms, 2.5 bathrooms, a spacious entry foyer open to a great room, dining room, large kitchen with snack bar, 1st floor home office or additional bedroom, luxurious master suite. All large rooms are accented by 9' ceilings. Additional bedroom upon request
Note: Photo/Rendering is for illustrative purposes only and may reflect options not included in the standard features and/or purchase price
Email A Friend





