OUR
COMMUNITIES
OUR
COMMUNITIES
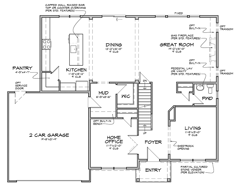
This two story home offers 4 bedrooms and 2.5 bathrooms, expansive great room/dining/kitchen w/ large island & walk-in pantry, mud room w/ walk-in closet, second floor laundry and reading nook, dual walk-in closets, 9 ft first floor ceilings, full basement and 2 car garage. Optional 5th bedroom/full bath on 1st floor.
Note: Photo/Rendering is for illustrative purposes only and may reflect options not included in the standard features and/or purchase price
Email A Friend




